Method, principles, structure
Author(s)
Cliostraat
Cristina Casula (IT)
Alessandra Esposito (IT)
Emanuela Curtoni (IT)
Emmanuele Auxilia (IT)
Timothy Heys Cerchio (IT)
Mauro Penna (Negozio Blu)
Client(s)
City of Quarrata
Competition team
Emanuela Curtoni (IT)
Alessandro Bragaglia (IT)
Stefano Mirti (IT)
Mario Pegoraro (IT)
Nicoletta Sisca (IT)
Europan 3 Quarrata
winner
1994
The governing approach adopted in the project was to establish certain junction points of architectural intervention, based on a “relevant description“ incorporating the geographical configuration of the site, the “genetic code“ of the terrain, and the “identity of the local system“ on various scales of interaction. Within this scheme, a number of activities located around the former furniture factory would be transferred to other areas, while old buildings or previously abandoned constructions would be rehabilitated.



1995-1998
The mayor of Quarrata opted to employ both teams to bring the concepts together. He organized a week-long workshop at Quarrata to prepare a preliminary urban scheme based on the two prize-winning concepts, to provide the city with an executive instrument of urban design. Following this seminar, the two winners were commissioned to conduct an urban study to establish the main orientations. The outcome of the seminar was to opt for the implementation of a joint urban project using both winning concepts: the Finnish project, which experiments with living in a familiar city with neighbourhood and residential scale meeting spaces; and the more programmatic Italian plan, based on an analysis of the site's potential and local identity, which proposes structured strategic activities capable of creating a city centre. A year after its approval, the municipality commissioned both prize-winning teams to prepare an executive plan for part of the preliminary project. Progress was impeded by the town planning regulations, and a great deal of energy, time and political negotiation were required to overcome the institutional, regulatory and financial difficulties. The different parties had to reach a consensus and work hard to obtain the necessary finance.






1998-2001
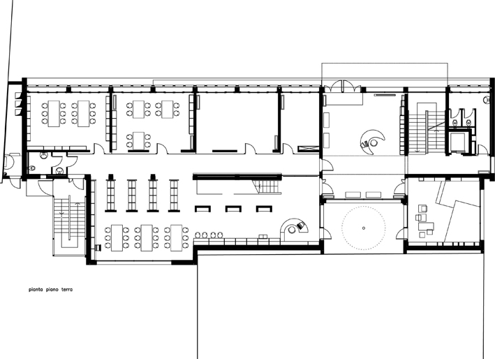
The Italian team undertook the urban area plan as well as the regeneration of the former industrial centre to form public spaces, a car park and library. The resulting urban scheme creates a series of articulated connecting spaces, rather than a single unifying space. In order to achieve a diversity of architectural expression for this young city, three different architects were commissioned. The urban plan locates several open air and building projects around a large housing block commissioned from local architects. The Italians designed a library building that creates a play of light and transparency and enlivens the Piazza Coperta. In order to establish a relationship between the library and public space, the geometry and play of lines in the facade is reproduced in the floor of the Piazza. The team was subsequently assigned two further projects for a youth centre and a combined car park and park. The ludic aspect of the youth centre is emphasised through the use of animal faces. The rear facade has the face of an owl, and the playground has a small “mountain“ designed to resemble a cat's head. The design creates a genuine diversity of architectural expression.
Although made of very different materials, the museum and library facades display a similarity in the play of horizontal and vertical lines. An attention to light is also present in both projects, which both use vaulted ceilings to allow light to enter.
The main goal of the urban plan was to create a polarity of urban services in a town that had not followed the traditional trajectory of city development. The new public services buildings were not concentrated in a single complex building, but spread out over a small area in order to generate a subtle urban diversity in the small-scale city centre. The subdivision of programmes creates a fluidity of space which gives the new urbanity a polymorphism of experience.







Site informations
Quarrata
Synthetic site file EN