Portraits E18 - Komorebi
Barcelona-La Verneda (ES) - Lauréat
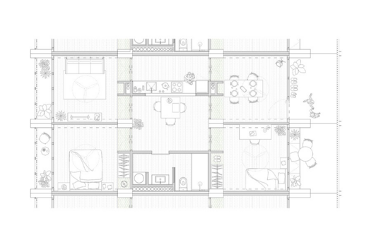
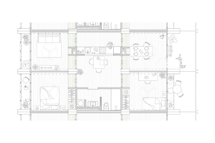
Komorebi
Associés: Aina Roca Mora (ES), Robert Comas Miralpeix (ES) – architectes
Lire le portrait complet ici
Voir la liste des portraits d'équipe ici
"We approached the project conducting both an historical analysis on the site and researching new ways of building aligned with extremely prefabricated systems. We designed our building to make it socially aware of its singular position within the neighbourhood and the city of Barcelona -introducing a civic centre, urban gardens...- and also efficient in its constructive system, reducing the impact its construction will have on both the urban fabric and its neighbours."
